VIV697  |  Alquiler temporal. Piso. Calle de la Perla. Salamanca.


800 €

Descripción

ALQUILER TEMPORAL. Vivienda en buen estado de conservación y ubicada en una calle tranquila con conexión directa a la Avenida de Portugal. Su localización es ideal, ya que se encuentra a un paso del Campus Universitario y la Estación de Autobuses, en una zona muy cómoda para el día a día, rodeada de todos los servicios básicos (centro médico, farmacias, supermercados, entidades bancarias, etc. )

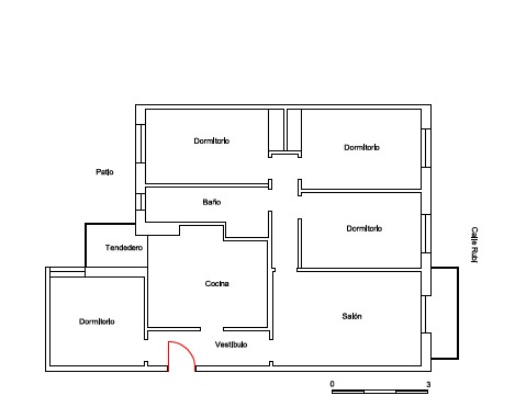
Situada en la segunda planta de un edificio con ascensor y accesos adaptados para personas con movilidad reducida. Cuenta con una superficie útil de 77,85 m2 distribuida en un hall de entrada que da paso a un amplio salón comedor con acceso a un balcón cerrado con agradables vistas a las zonas ajardinadas del interior de la manzana. La cocina independiente con zona de comedor, y totalmente equipada, cuenta con una práctica galería hacía el patio de luces, donde se encuentran la lavadora y la caldera.

La vivienda dispone de cuatro dormitorios, todos amueblados con escritorio, ideales para trabajar o estudiar cómodamente; dos de ellos cuentan además con armario empotrado y baño completo con plato de ducha.

Los sistemas de calefacción y agua caliente sanitaria funcionan mediante de caldera individual de gas natural. Suelos de cerámica, carpintería interior de roble y ventanas de PVC con doble cristal y aluminio.

NO SE ADMITEN MASCOTAS.

Gastos a soportar por los inquilinos: Luz, agua y gas.
1 mes de fianza y 1/2 mes de gastos de intermediación.

Si estás interesado, llámanos para agendar una visita.

Características

Generales
Número habitaciones: 4
Número de baños: 1
Superficie construída (m2): 90
Superficie útil (m2): 77,85
Año de construcción: 1970
Estado construcción: Ocasión
Conservación: Buen estado

Extras de interior
Amueblado: Completo
Carpintera exterior: PVC doble cristal y Aluminio cristal simple
Tipo cocina: Independiente (Equipada)
Tipo de suelo: Cerámica
Armarios empotrados
Carpintera interior: Roble
Calefacción y Agua caliente individual: Gas Natural

Extras de exterior
Vistas: Exterior e interior
Balcón
Orientación: Oeste
Planta: 2ª
Galería

Extras comunitarios
Acceso adaptado
Ascensor

Certificado energético
Certificado energético: Sí
Consumo de energía: E - 202,6 Kwh/m2 al año
Calificación de emisiones: E - 42,7 Kg CO2/m2 al año

Económicos
Fianza: 1
Gastos a soportar: Luz, agua y gas

Entorno
Parada de autobús
Colegio cercano
Universidades
Supermercados

Información

COCO LASTRA ASESORA INMOBILIARIA S.L.
C/ San Pablo, 5. 37001 - Salamanca
Tfnos.: 923 156 787   |   676 217 440
Email: info@cocolastra.es

Aviso legal y de privacidad | Política de cookies

¡Síguenos!