UNI149  |  Unifamiliar adosado. Calle Santa María. Alba de Tormes. Salamanca.


80.000 €

Descripción

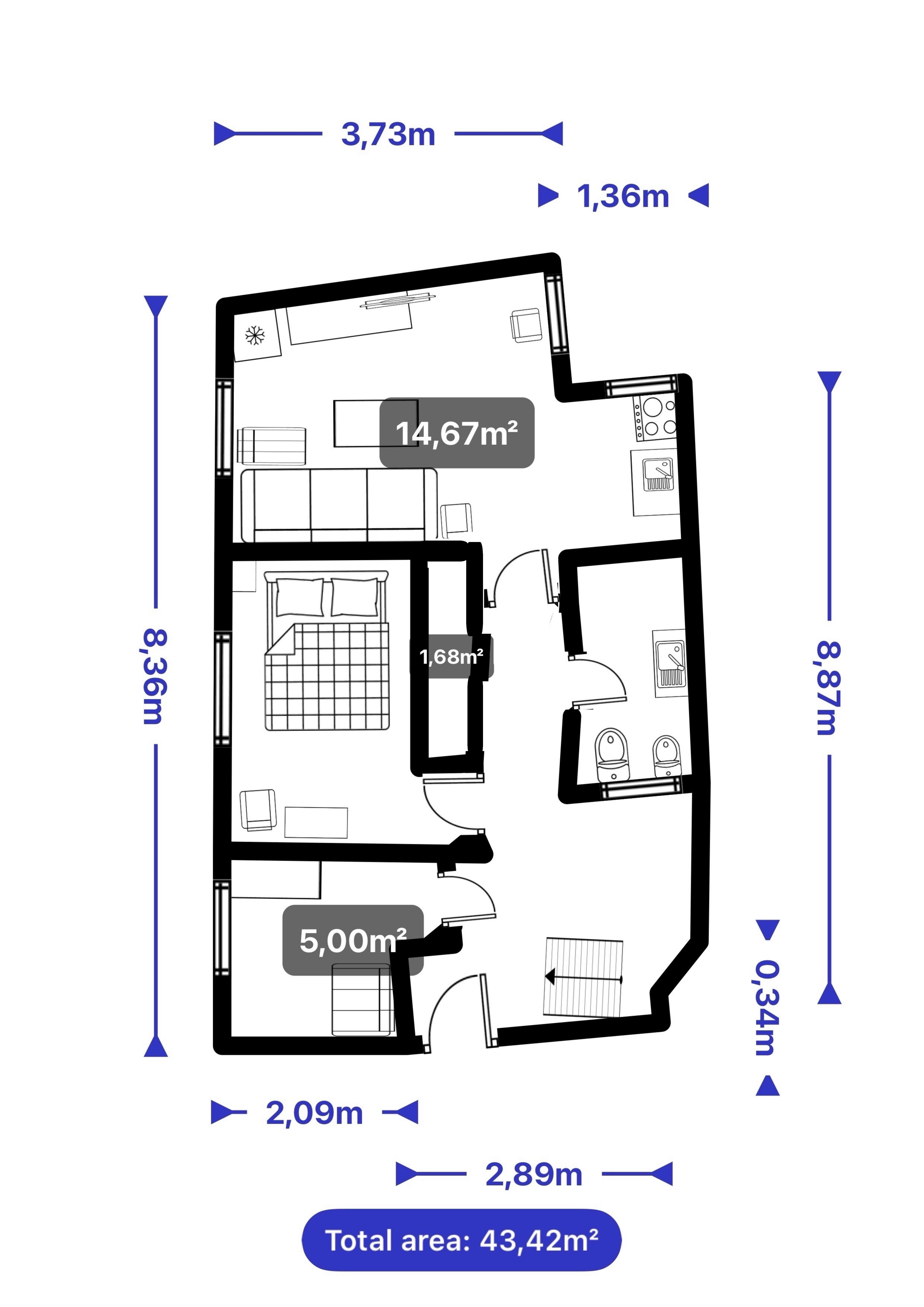
Vivienda adosada con uso de oficina/almacén en el municipio de Alba de Tormes a unos 22 kilómetros de Salamanca. Situada junto al Castillo de los Duques de Alba, cercana a la plaza de toros. Se encuentra en perfecto estado de conservación con su fachada principal orientada al sur, ideal para uso residencial. Su acceso desde el exterior es común a dos propiedades. Dispone de 116 m² construidos, distribuidos en planta baja y sótano.
La planta baja está distribuida en hall de entrada, salón-comedor con cocina americana equipada con horno y placa vitrocerámica de dos fuegos, dos dormitorios (el principal con armario empotrado) y un baño con plato de ducha.
El sótano a su vez se distribuye en dos estancias, una de ellas, la más amplia con armario empotrado y una puerta de acceso a un pequeño cuarto de lavado, que recibe luz natural a través de una claraboya y además dispone de un aseo con plato de ducha en el que se ha instalado la caldera individual de gasóleo.
La carpintería exterior es de aluminio lacado, con doble cristal y rotura de puente térmico. En el interior, la carpintería es de madera de roble, los suelos de cerámica y las paredes presentan pintura blanca en gotelé.

No dude en contactarnos para solicitar más información o concertar una visita sin compromiso.

Características

Generales
Número habitaciones: 2
Número de baños: 1
Aseos: 1
Superficie construída (m2): 116
Año de construcción: 1991
Estado construcción: Ocasión
Conservación: Perfecto estado

Extras de interior
Carpintera exterior: Aluminio doble cristal con rotura de puente térmico
Lavadero
Tipo cocina: Americana (Equipada)
Tipo de suelo: Cerámica
Armarios empotrados
Carpintera interior: Roble
Calefacción y Agua caliente individual: Gasóleo

Extras de exterior
Vistas: Exterior e interior
Orientación: Sur
Planta: Baja

Certificado energético
Certificado energético: En trámite

Entorno
Parada de autobús
Colegio cercano
Supermercados

Información

COCO LASTRA ASESORA INMOBILIARIA S.L.
C/ San Pablo, 5. 37001 - Salamanca
Tfnos.: 923 156 787   |   676 217 440
Email: info@cocolastra.es

Aviso legal y de privacidad | Política de cookies

¡Síguenos!